.
South of Paseo del Prado & south-east Part of MAD(drid)’s Centre
1. Atocha Station Extension by Rafael Moneo (1984-92). It was a difficult intervention that Moneo won in a restricted competition. He had to maintain the original Mediodía Station and integrate new installations for both local and long distance trains, including the high speed terminal. The new entrance was placed in the back. The circular entrance building lights up from the top what was initially a dark underground and local train station, allowing space for a slender high speed terminal. The urban image was conceived almost as a monastery, the temples nave as the old station, the bell tower as the clock tower, and the baptistery as the access building. There old structure is now an interesting tropical garden that we will go through.
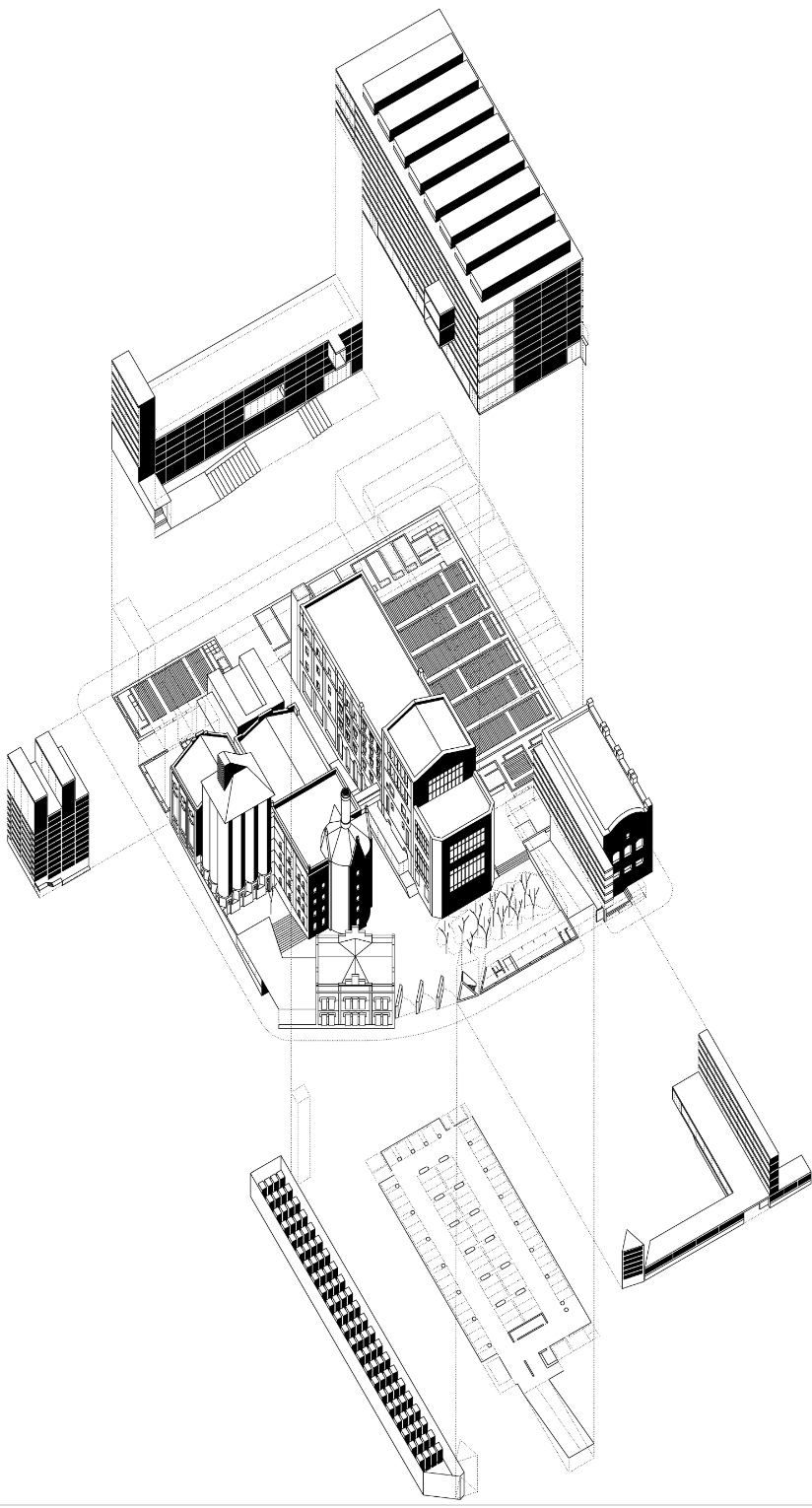
2. Municipal Archives, Library and Exhibition Space (2002) by Tuñon & Mansilla (Madrid) located in General Lacy St, 25, it is a first price competition won by Emilio Tuñon and Luís Mansilla (1959-2012), local architects with studio in Madrid which recovered and extended the 1912 El Águila Old Beer and Brewery Factory originally designed by Eugenio Jiménez Correa. The contemporary complex now integrates the following uses:
- The Municipal Archives of the Community of Madrid and research room.
- A Regional Library1 where we can still find left intact, and displayed, machinery of the bear and brewing factory, in the lobby and in the upper reading rooms. A very interesting space, are the interior of the old iron “silos” where the beer was stored: Now we find the library’s books deposited.
- Finally, there is a third building are, called El Aguila Sala de Exposiciones, which is a three story exhibition space, where both the interior and the exterior facade has been beautifully intervened, where the industrial break building is sandwiched in between.
All three new uses and architectural contemporary expression of this new cultural complex perfectly dialogs with the previous industrial architecture. Tuñon and Mansilla have designed and intervened with a pure contemporary architectural language and aesthetics, that beautifully employees modern materials such as white concrete, corrugated steel, u-glass, and warm wood finishes in the interiors. The result is not only a beautiful harmonious relationship between the old and the new, but it is also elegant and sublime. A must see and perhaps, the why Emilio Tuñon was awarded the 2022 National Architecture First Price Award, as a recognition for his long a long and exceptional career, which includes of-course other projects of importance, such as the Royal Collections Museum (2006- 2016) that we visit in our MAD(drid) Architecture Tour 02 and therefore, both complementary tours to each other.
3. Headquarter for the Municipal Transport Agency of Madrid (EMT) (2003-04) by Estudio Cano Lasso, in C/ Cerro de la Plata 4, Madrid. EMT (Municipal Transport Agency) Headquarters (2004) designed by Estudio Canno Lasso, a well known architectural studio based in Madrid. The building was a first- prize competition and hides a peculiar bridge structure: we could be granted access to the mechanical top floor to examine the two massive steel beams where the floor slabs are suspended from. The view from that point will let us see its proximity to the Atocha Station at the south end of the Recoletos-Prado Axis, where we started.
Details:
- Starting Point: At your hotel if we move on private or public transport. Alternatively Metro Ciudad de las Artes (L1).
- Duration: Between 2,5 (only Atocha Station and El Aguila or EMT) – 4 hrs complete Tour.
- Language : English, Spanish and others upon request
Itinerary:
Photos:



















.